Udo Wachtveitl - Häuser des Jahres 2021

Здесь есть возможность читать онлайн «Udo Wachtveitl - Häuser des Jahres 2021» — ознакомительный отрывок электронной книги совершенно бесплатно, а после прочтения отрывка купить полную версию. В некоторых случаях можно слушать аудио, скачать через торрент в формате fb2 и присутствует краткое содержание. Жанр: unrecognised, на немецком языке. Описание произведения, (предисловие) а так же отзывы посетителей доступны на портале библиотеки ЛибКат.

Häuser des Jahres 2021: краткое содержание, описание и аннотация

Предлагаем к чтению аннотацию, описание, краткое содержание или предисловие (зависит от того, что написал сам автор книги «Häuser des Jahres 2021»). Если вы не нашли необходимую информацию о книге — напишите в комментариях, мы постараемся отыскать её.

Zu einem Einfamilienhaus gehören immer zwei: Architekt und Bauherr! Denn nur im intensiven Dialog entsteht ein maßgeschneidertes Traumhaus, das die individuellen Lebensvorstellungen der Nutzer und die Kompetenz der Gestalter in Stein, Holz, Beton, Stahl oder Glas übersetzt. Der Wettbewerb HÄUSER DES JAHRES wird seit 2011 vom Deutschen Architekturmuseum und Callwey ausgelobt und prämiert die besten Projekte im deutschsprachigen Raum. Eine Fachjury wählt 50 herausragende Häuser und zahlreiche innovative Produktlösungen von der Außenwand bis zum Badezimmer aus. HÄUSER DES JAHRES ist das unverzichtbare Jahrbuch für alle Bauherren und Architekten, um sich für eigene Planungen inspirieren zu lassen.

Häuser des Jahres 2021 — читать онлайн ознакомительный отрывок

Ниже представлен текст книги, разбитый по страницам. Система сохранения места последней прочитанной страницы, позволяет с удобством читать онлайн бесплатно книгу «Häuser des Jahres 2021», без необходимости каждый раз заново искать на чём Вы остановились. Поставьте закладку, и сможете в любой момент перейти на страницу, на которой закончили чтение.

Тёмная тема
Сбросить

Интервал:

Закладка:

Сделать

Die Verwendung des zeitgenössischen Baumaterials Stahl macht den baulichen Eingriff ablesbar und trägt gleichwohl der gesellschaftlichen Entwicklung mit dem Bedürfnis nach erlebbarem Außenwohnraum Rechnung. Holzdielen als Außenbelag spannen den materiellen und zugleich zeitlichen Bogen zum Dielenboden des Bestandsgebäudes. Ein hauchdünnes Metallgewebe als Absturzschutz verleiht dem „Gartenregal“ ein Gefühl von Leichtigkeit ohne Barriere zum Naturraum. Es ist immer wieder erfrischend zu sehen, wie wenig Eingriff notwendig ist, um Gutes zu schaffen.

Dass wir Planer und Bauherr in Personalunion waren so - фото 70 Dass wir Planer und Bauherr in Personalunion waren so Rike Kress hatte den - фото 71 Dass wir Planer und Bauherr in Personalunion waren so Rike Kress hatte den - фото 72

„Dass wir Planer und Bauherr in Personalunion waren“, so Rike Kress, „hatte den Vorteil, dass viele Entscheidungen sehr spontan getroffen werden konnten und wir auf Kostenentwicklung und vorgefundene Überraschungen im Bestand sehr schnell reagieren konnten.“

Die Architekten sehen den Wunsch nach dem Bau eines Einfamilienhauses kritisch - фото 73

Die Architekten sehen den Wunsch nach dem Bau eines Einfamilienhauses kritisch: Es sorgt für Zersiedelung, hat einen hohen Flächenverbrauch und ist oftmals unflexibel. „Daher kann der ständige Neubau von Einfamilienhäusern unseres Erachtens nicht die Antwort auf die Wohnungsfrage sein. Zumal es gleichzeitig so viel Leerstand bei bestehenden (Wohn-) Gebäuden gibt. Bei unserer Suche nach einem geeigneten Wohnraum waren wir deshalb immer auf der Suche nach gemeinschaftlichen Wohnformen einerseits oder einem interessanten Bestandsgebäude. Mit der „Villa Fleisch“ hatten wir dann schließlich Glück. Die Bausubstanz ist sehr robust und in der Struktur äußerst flexibel nutzbar. Auch, dass mehrere Wohneinheiten prinzipiell schon angelegt waren (Familienwohnung oben, Einliegerwohnung unten, Jokerzimmer für Gäste und als Zwischenlösung für Freunde und Bekannte), hat uns sehr gereizt.“

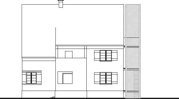
Ansicht Querschnitt Grundriss Dachgeschoss - фото 74

Ansicht

Querschnitt Grundriss Dachgeschoss Grundriss Oberg - фото 75

Querschnitt

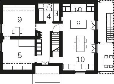
Grundriss Dachgeschoss Grundriss Obergeschoss Grun - фото 76

Grundriss Dachgeschoss

Grundriss Obergeschoss Grundriss Erdgeschoss Herst - фото 77

Grundriss Obergeschoss

Grundriss Erdgeschoss Hersteller Absturzsicherung beim Stahlanbau Webnet - фото 78

Grundriss Erdgeschoss

Hersteller Absturzsicherung beim Stahlanbau Webnet Firma Wüstner Maßstab M - фото 79

Hersteller: Absturzsicherung beim Stahlanbau: Webnet, Firma Wüstner

Maßstab

M 1:400

1Eingang

2Wohnen

3Kochen, Essen

4Bad

5Schlafen

6Gast

7Terrassenanbau

8WC

9Arbeiten

10Wohnküche

„Ein wichtiges Anliegen bei diesem Projekt war es für uns, das Gebäude neu zu beleben, ohne ihm den Perfektionismus eines Neubaus überzustülpen. Keine Totsanierung, sondern eine Revitalisierung.“

Frank Stasi Rike Kress ARSP ZT GmbH Dornbirn A wwwarspcc Anzahl der - фото 80

Frank Stasi, Rike Kress

ARSP ZT GmbH, Dornbirn (A)

www.arsp.cc

Anzahl der Bewohner:

3 + 1

Wohnfläche (m 2):

165 + 58

Grundstücksgröße (m 2):

615

Standort: Dornbirn (A)

Bauweise:

Bestand: Mauerwerkswände, Dachstuhl aus Holz, Anbau: Stahlbau

Fertigstellung: 10/2018

Architekturfotografie:

Zooey Braun, Stuttgart

www.zooeybraun.de

Lageplan

Das Haus am See Anerkennungen von Thomas Kröger Architekten GmbH in Wandlitz - фото 81

Das Haus am See

Anerkennungen

von Thomas Kröger Architekten GmbH

in Wandlitz, Barnim

Den Bau einer Kirche vermuteten die Nachbarn während der Bauzeit Heute ist die - фото 82

Den Bau einer Kirche vermuteten die Nachbarn während der Bauzeit. Heute ist die Villa Lebensraum für eine Familie und Wallfahrtsort für Architekten.

Der Barnim ist eine eiszeitlich gebildete Hochfläche und eine historische Landschaft im mittleren und nordöstlichen Brandenburg. Bis zum starken Wachstum Berlins im ausgehenden 19. Jahrhundert war der Barnim nur dünn besiedelt. Das änderte sich 1901 mit der Einweihung der Eisenbahnlinie Berlin-Groß Schönebeck – der sogenannten Heidekrautbahn –, an deren Strecke auch Wandlitz liegt. Damals entstanden dort Landhäuser und Villen, später zog es Erich und Margot Honecker, Egon Krenz oder Walter Ulbricht an den Wandlitzer See. Das denkmalgeschützte Bahnhofsgebäude von 1928 im Stil der Neuen Sachlichkeit stammt vom Architekten Wilhelm Wagner. Heute verbindet zudem die Bundesstraße 109 mit dem 25 Kilometer entfernten Berliner Stadtzentrum.

Glücklich, wer hier 1800 Quadratmeter Grund besitzt, in einem Wäldchen aus hochaufragenden Kiefern am See. Glücklich auch, wer die eigenwilligen Häuser in der Uckermark aus dem Berliner Büro von Thomas Kröger kennt, von denen viele mit Preisen und Auszeichnungen auch in den Häusern des Jahres prämiert wurden, und ihn für den Auftrag, ein Einfamilienhaus zu entwerfen, begeistern kann. Denn, so der Architekt, „am meisten reizt das Grundstück. Bei nahezu allen Häusern, die wir bauen konnten, gibt es diese besonderen Qualitäten im Naturraum. Wichtig dabei ist uns, dass die Grundstücke innerhalb eines gewachsenen baulichen Rahmens liegen. Ansonsten betrachten wir den Einfamilienhausneubau eher kritisch. Insbesondere problematisch sind Neubaugebiete, die die Ortskerne ausfasern lassen. Hier sind Konzepte gefordert, die Ortschaften baulich zukunftsfähig und interessant machen.“

So großartig das Grundstück auch liegt, so herausfordernd war es, das schlanke Baufeld mit dem Baurecht und dem geforderten Raumprogramm stimmig zu entwickeln. Zum Ufer des Wandlitzer Sees öffnet sich das aus einfachen geometrischen Formen zusammengesetzte Haus, zum Wald hin gibt es sich geschlossen. Die Organisation der Grundrisse erfolgt über Split-Level: Als hohe Halle öffnet sich im Erdgeschoss der Wohnbereich in den Garten, Kochen und Speisen laden aufgrund der niedrigeren Geschoss- und Raumhöhe zum intimeren Zusammensein. Die nächste Ebene ist den Eltern vorbehalten, ein halbes Geschoss höher liegt der Gäste-, Arbeits- und Kinderbereich. Sauna und Bad öffnen sich auf die Dachterrassenlandschaft, die von Kiefernkronen beschirmt wird. Etwas tiefer als der Wohnraum wird die Villa erschlossen, eine Stufe führt zu Garderobe, Gästebad und Werkraum.

Читать дальше
Тёмная тема
Сбросить

Интервал:

Закладка:

Сделать

Похожие книги на «Häuser des Jahres 2021»

Представляем Вашему вниманию похожие книги на «Häuser des Jahres 2021» списком для выбора. Мы отобрали схожую по названию и смыслу литературу в надежде предоставить читателям больше вариантов отыскать новые, интересные, ещё непрочитанные произведения.


Отзывы о книге «Häuser des Jahres 2021»

Обсуждение, отзывы о книге «Häuser des Jahres 2021» и просто собственные мнения читателей. Оставьте ваши комментарии, напишите, что Вы думаете о произведении, его смысле или главных героях. Укажите что конкретно понравилось, а что нет, и почему Вы так считаете.

x