Francisco Javier Manzano García - Ejecución de fábricas a cara vista. EOCB0108

Здесь есть возможность читать онлайн «Francisco Javier Manzano García - Ejecución de fábricas a cara vista. EOCB0108» — ознакомительный отрывок электронной книги совершенно бесплатно, а после прочтения отрывка купить полную версию. В некоторых случаях можно слушать аудио, скачать через торрент в формате fb2 и присутствует краткое содержание. Жанр: unrecognised, на испанском языке. Описание произведения, (предисловие) а так же отзывы посетителей доступны на портале библиотеки ЛибКат.

Ejecución de fábricas a cara vista. EOCB0108: краткое содержание, описание и аннотация

Предлагаем к чтению аннотацию, описание, краткое содержание или предисловие (зависит от того, что написал сам автор книги «Ejecución de fábricas a cara vista. EOCB0108»). Если вы не нашли необходимую информацию о книге — напишите в комментариях, мы постараемся отыскать её.

Libro especializado que se ajusta al desarrollo de la cualificación profesional y adquisición de certificados de profesionalidad. Manual imprescindible para la formación y la capacitación, que se basa en los principios de la cualificación y dinamización del conocimiento, como premisas para la mejora de la empleabilidad y eficacia para el desempeño del trabajo.

Ejecución de fábricas a cara vista. EOCB0108 — читать онлайн ознакомительный отрывок

Ниже представлен текст книги, разбитый по страницам. Система сохранения места последней прочитанной страницы, позволяет с удобством читать онлайн бесплатно книгу «Ejecución de fábricas a cara vista. EOCB0108», без необходимости каждый раз заново искать на чём Вы остановились. Поставьте закладку, и сможете в любой момент перейти на страницу, на которой закончили чтение.

Тёмная тема
Сбросить

Интервал:

Закладка:

Сделать

Por todo lo expuesto, hemos de decir que un plano de planta no se representa a ras de suelo sino por encima de los alféizares de las ventanas, actuando de forma imaginaria, como si se hubiera seccionado la casa por medio de un corte, capaz de dividir el edificio en dos partes desiguales, separadas entre sí por un plano geométrico horizontal que alcance y englobe todas las aberturas o huecos al exterior.

En la documentación gráfica mínima de un proyecto han de incluirse, además de los planos de planta y alzado, las secciones. Estos planos no son más que cortes imaginarios longitudinales y/o transversales de la edificación representados mediante los alzados de estos cortes realizados en sentido vertical. Así, como hemos dicho, las secciones sirven de complemento al conjunto formado por los planos de planta y de alzado, al aportar detalles que estos últimos no llevan reflejados.

Para la denominación de las secciones en principio se denomina sección transversala la que surge por un corte imaginario a lo ancho del edificio, o sea, paralelo a la fachada principal del mismo, mientras que la sección longitudinalserá aquella en la que el corte se produzca de forma perpendicular a la propia fachada. En la práctica, suelen omitirse ambos nombres y tanto las secciones longitudinales como las transversales se acostumbran a llamar por medio de dos letras mayúsculas repetidas o dos dígitos consecutivos (Sección A-A o Sección 1-1).

Sabemos que un corte en sección se adjudica, de forma imaginaria, a un supuesto tajo dado al edificio que lo divide en dos partes, limitadas por un plano geométrico vertical, y que este corte puede ser transversal o longitudinal.

Como es lógico, un edificio no es siempre simétrico, y aunque lo fuese, la distribución interior que quedará al descubierto en la sección será cambiante, es decir, no será igual si el corte ha sido realizado en un punto o en otro.

Entonces, hay que indicar en el plano de planta el lugar exacto al que corresponde el alzado en sección mediante el marcado de la nomenclatura dada a la sección y unas flechas que indiquen la posición del observador en la sección sobre una línea de trazos y puntos.

картинка 35

Recuerde

Las secciones pueden ser longitudinales o transversales, aunque en la práctica suelen omitirse ambos nombres.

En cada proyecto se incluirán las secciones que se consideren necesarias para la correcta comprensión por parte de quien tenga que trabajar con la documentación gráfica. El número de secciones, por lo tanto, dependerá enteramente del proyectista. Aun no existiendo expresamente regla o norma alguna para la posición de los cortes, se da por supuesto que estos han de realizarse por aquellas partes de la edificación que precisan una mayor aclaración, de acuerdo con los elementos que comprende y que interesa detallar, dejando una representación clara y completa. Es habitual el empleo de líneas quebradas en la representación de las secciones, de forma que en estas se recojan el mayor número de puntos singulares a detallar como huecos, escaleras, cambios de altura, etc.

Un proyecto, para poder considerarlo completo, deberá contener una serie de planos referidos a detalles de importancia para la correcta ejecución de la obra pero que su inclusión en un plano general harían confusa la lectura de este, aparte de que muchas veces requieren ser tratados a mayor tamaño, para ampliar de esta forma la efectividad del gráfico.

En términos generales, un proyecto completo debe disponer de un conjunto de planos que comprenda, como mínimo:

1 Planos de planta, tantos como diferentes existan.

2 Planos de alzado, tantos como fachadas tenga el edificio.

3 Un número, a determinar por el proyectista, de secciones.

4 La cantidad de planos de detalle que sea conveniente en cada caso para facilitar la comprensión de la obra.

картинка 36

Nota

De lo que se trata es de que, con el manejo de cualquiera de los planos que conforman el proyecto, se perciba sin la más mínima duda la obra que comprende, tal y como su autor la haya ideado.

Debemos partir del supuesto de que no es difícil leer e interpretar correctamente un plano. Será suficiente con proponérselo, poner interés en la operación y poseer un mínimo sentido común. De hecho, suele ser suficiente con un breve aprendizaje, que han de pasar todos los profesionales de este campo.

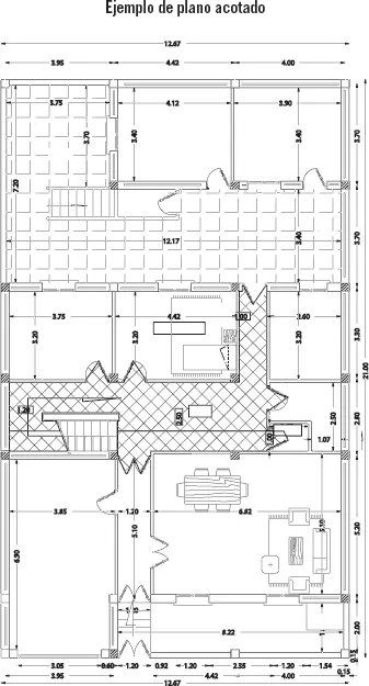
Lo fundamental en un plano es la exposición clara de todas las medidas relativas a cuantos elementos intervienen en su composición, refiriéndose tanto a los elementos particularmente como al conjunto en el que se integran. Únicamente, el conocimiento de todas las medidas es lo que puede hacer viable la conversión de un proyecto establecido en la documentación gráfica que lo compone, en una obra natural y auténtica. Hay que recordar que un plano es la representación dibujada, a tamaño proporcional, del proyecto de una obra por realizar, o un documento que refleja una obra ya realizada.

Un plano debidamente acotado no ofrece el menor problema en cuanto a la comprensión de las medidas expuestas gráficamente. Las líneas de cota y las cifras de cota, aquellas indicando la extensión de un elemento y de todas y cada una de sus partes, y estas últimas señalando su valor real, son suficientes datos. La dificultad en la interpretación de las medidas comenzará en el mismo momento en que el plano se hace mudo.

Sin embargo, es posible leer estas cotas valiéndonos únicamente del dibujo que se nos muestra en el plano, ya que este no solo representa la forma y disposición exacta de las plantas, fachadas, etc., sino también las dimensiones reales totales y parciales de los elementos representados.

Esto quiere decir que los distintos paramentos que componen una edificación se - фото 37

Esto quiere decir que los distintos paramentos que componen una edificación se dibujan de acuerdo al espesor y longitud real que tienen o tendrán.

Como es lógico, si el tamaño de los planos fuese el mismo que el de los edificios que representan sería casi imposible su delineación y su manejo posterior. Es por esto que los planos se reflejan respetando fielmente las medidas reales pero, proporcionalmente, un determinado de número de veces más pequeñas.

Por lo tanto, sabiendo la escala gráfica de un plano y una cota real del elemento representado en el mismo, podemos obtener todas y cada una de las medidas que necesitemos del mismo mediante medición directa en el documento gráfico con escalimetro, regla, escalas graficas, etc., y una serie de fáciles operaciones matemáticas que nos traspasen la medida realizada directamente a la medida real.

En construcción, es habitual el empleo de distintos tipos de escalas:

1 Escala natural. Quiere decir que las dimensiones representadas son naturales, es decir, 1 a 1. Este tipo de escala se emplea en elementos de escasas dimensiones.

2 Escala de ampliación. En ocasiones, es conveniente representar un elemento aumentando las dimensiones del mismo debido a su pequeño tamaño.

3 Escala de reducción. Son las más empleadas en construcción. En este tipo de escalas, la dimensión real se reduce un cierto número de veces. Las reducciones que pueden hacerse pueden ser infinitas, por lo que se recurre siempre a normalizar su uso con el empleo de escalas normalizadas.

22 Realización de croquis sencillos Cuando representamos el boceto de un - фото 38

2.2. Realización de croquis sencillos

Читать дальше
Тёмная тема
Сбросить

Интервал:

Закладка:

Сделать

Похожие книги на «Ejecución de fábricas a cara vista. EOCB0108»

Представляем Вашему вниманию похожие книги на «Ejecución de fábricas a cara vista. EOCB0108» списком для выбора. Мы отобрали схожую по названию и смыслу литературу в надежде предоставить читателям больше вариантов отыскать новые, интересные, ещё непрочитанные произведения.


Отзывы о книге «Ejecución de fábricas a cara vista. EOCB0108»

Обсуждение, отзывы о книге «Ejecución de fábricas a cara vista. EOCB0108» и просто собственные мнения читателей. Оставьте ваши комментарии, напишите, что Вы думаете о произведении, его смысле или главных героях. Укажите что конкретно понравилось, а что нет, и почему Вы так считаете.

x