Достичь Готенхафена, который располагался на расстоянии 1500 км от английской базы, удалось лишь семи бомбардировщикам Lancaster, но и тем не повезло — из-за тумана их экипажи не смогли обнаружить авианосец, и им пришлось сбросить свои «супербомбы» просто в район гавани. Правда, в этой акции не был потерян ни один Lancaster.
30 ноября 1942 года три буксира в обстановке повышенной секретности (на это время судну даже заменили название, обозначив его в переговорах как Zander вместо Graf Zeppeline) вывели авианосец в море. К этому времени немцы успели усилить его зенитное вооружение — на нем установили три спаренных 37-мм и два счетверенных 40-мм зенитных автомата, а также зенитные прожекторы.
5 декабря в сопровождении трех тральщиков и шести сторожевых катеров Graf Zeppelin благополучно прибыл в Киль, где был поставлен в плавучий док верфи Deutsche Werke грузоподъемностью 40 000 т. На корабле начались работы, но уже 30 января 1943 года Гитлер приказал прекратить достройку…
Такое решение было связано с провалом операции Regenbogen, целью которой являлось уничтожение союзнического конвоя JW51B в Баренцевом море. После неудачного для немцев морского сражения 31 декабря 1942 года Гитлер, абсолютно разуверившийся в боевой эффективности тяжелых артиллерийских кораблей Kriegsmarine, приказал поставить их на прикол, предварительно демонтировав с них вооружение. Это решение повлияло и на судьбу авианосца, так как именно совместно с подобными боевыми кораблями и предполагалось его использование.
21 апреля 1943 года Graf Zeppelin в рамках операции Zugvogel снова переводят на восток. 23 апреля конвой с авианосцем достиг Свинемюнде, а спустя несколько часов вошел в Штеттин. Здесь корабль покинул экипаж, состоящий из военных моряков и работников судоверфи, и его заменил персонал из сорока гражданских работников. Первым делом они демонтировали валы гребных винтов и уложили их на палубе для уменьшения электрохимической коррозии корпуса.
 
Буксировка авианосца
 
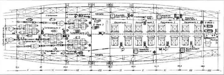
Компоновка главной энергетической установки авианосца Graf Zeppelin
Далее с корабля были демонтированы 150-мм орудия — их перевезли в Норвегию, где они использовались на батареях береговой артиллерии. В декабре 1943 года четыре орудия установили на батарее МКВ 6/514 под Альтафьордом, где они эксплуатировались до февраля 1944 года. В ноябре 1944 года их перевезли на батарею МКВ 5/512 в Карлсоу и установили там в январе 1945 года. После войны эти орудия были смонтированы в форте Гротоя под Харстадом, где использовались норвежской армией до начала 1990-х годов. Четыре других орудия были перевезены в Кап Романов и введены в эксплуатацию в сентябре 1942 года — они вели огонь по позициям советской береговой артиллерии в Фискерихалвоя и были взорваны в октябре 1944 года.
 
АВИАНОСЕЦ Graf Zeppelin Внешний вид авианосца Graf Zeppelin Вид с правого борта
 
  
Вид с левого борта
Когда в апреле 1945 года к Штеттину приблизились наступающие советские войска, увести недостроенный авианосец в другое, более безопасное место немцы были уже не в состоянии, поэтому корабль был подготовлен к уничтожению. На тот момент Graf Zeppelin имел комплектную механическую установку, на корабле функционировали бортовые генераторы электроэнергии. Правда, остальное электрооборудование не было полностью смонтировано, отсутствовали авиационно-технические устройства, артиллерийское вооружение, не хватало приборов и оборудования постов управления стрельбой.
Взрывные заряды (10 глубинных бомб) были заложены под главные турбины, электрогенераторы и самолетоподъемники. 24 апреля в 18.00 по приказу старшего морского начальника Штеттина капитана цур зее В.Калера специальная команда взрывников подорвала заряды. Механизмы корабля были уничтожены, а через образовавшиеся пробоины и трещины внутрь авианосца начала поступать забортная вода. Однако благодаря тому, что корабль находился в недостаточно глубокой протоке Монне реки Одер, он просто лег на грунт на глубине семи метров с креном 0,5 градуса на правый борт. Уровень воды в машинном отделении составил 4 м. В таком притопленном состоянии в тот же день авианосец был захвачен советскими войсками.
Читать дальше