Нина Коновалова - Современная архитектура Японии. Традиции восприятия пространства

Здесь есть возможность читать онлайн «Нина Коновалова - Современная архитектура Японии. Традиции восприятия пространства» — ознакомительный отрывок электронной книги совершенно бесплатно, а после прочтения отрывка купить полную версию. В некоторых случаях можно слушать аудио, скачать через торрент в формате fb2 и присутствует краткое содержание. Город: Москва, Год выпуска: 2017, ISBN: 2017, Издательство: Литагент Нестор-История, Жанр: Культурология, Технические науки, architecture_book, на русском языке. Описание произведения, (предисловие) а так же отзывы посетителей доступны на портале библиотеки ЛибКат.

Современная архитектура Японии. Традиции восприятия пространства: краткое содержание, описание и аннотация

Предлагаем к чтению аннотацию, описание, краткое содержание или предисловие (зависит от того, что написал сам автор книги «Современная архитектура Японии. Традиции восприятия пространства»). Если вы не нашли необходимую информацию о книге — напишите в комментариях, мы постараемся отыскать её.

Япония отличается особым отношением к традиционным ценностям своей культуры. Понимание механизмов актуализации и развития традиций, которыми пользуется Япония, может открыть новые способы сохранения устойчивости культуры, что становится в настоящее время все более актуальной проблемой для многих стран мира. В качестве центральных категорий, составляющих основу пространственного восприятия архитектуры в Японии, выделяется триада: пустота, промежуток, тень. Эти категории можно считать инвариантами культуры этой страны, т. к. устойчивость их применения прослеживается не только в средние века, но и в Новейшее время. Современная архитектура Японии демонстрирует свою связь с традицией не столько формальными методами, сколько на более глубоком – уровне основных схем восприятия художественного произведения, его смысловых и эстетических составляющих. Крупнейшие современные архитекторы, создавая свои произведения, стремятся сохранять ощущение пространства, исторически воспитанное культурой Японии.
Книга предназначена архитекторам, искусствоведам, а также всем интересующимся культурой Японии.

Современная архитектура Японии. Традиции восприятия пространства — читать онлайн ознакомительный отрывок

Ниже представлен текст книги, разбитый по страницам. Система сохранения места последней прочитанной страницы, позволяет с удобством читать онлайн бесплатно книгу «Современная архитектура Японии. Традиции восприятия пространства», без необходимости каждый раз заново искать на чём Вы остановились. Поставьте закладку, и сможете в любой момент перейти на страницу, на которой закончили чтение.

Тёмная тема
Сбросить

Интервал:

Закладка:

Сделать

Масштаб помещений изменяется в соответствии с их предназначением: из просторной гостиной в более скромные по размерам жилые комнаты выводит узкий коридор с очень низким потолком. В доме запроектировано семь различных уровней полов, но они сделаны архитектором так мастерски, что чувствуется абсолютная естественность и органичность перетекающего пространства. Двухуровневая гостиная воспринимается единым неразрывным помещением, которое при необходимости может вместить в себя большую компанию. Ее вертикальное разделение не воспринимается как разобщенность пространства и не помешает течению общей беседы. Гостиная – сердце этого дома, где все создано для комфорта: проникающий через большие окна свет играет на контрасте черных и белых стен, чем достигается эффект умиротворения. При желании можно опустить жалюзи и отгородиться от всего остального мира.

Расположенный внутри постройки сад делит дом на крылья, которые на всех уровнях связываются внешними верандами (их присутствие – также традиционная особенность японских построек) – См. вкл.: илл.10. Кроме того, хозяином-архитектором продумано обособление частной жизни своих домочадцев. Право на личное пространство и невмешательство в образ жизни других утверждается и регулируется. Дом устроен так, чтобы спальня родителей была в конце одного маршрута, а детская – в конце другого: так, оставаясь фактически рядом, они отделяются и отдаляются психологически.

За последние годы в Японии построено несколько неповторимых и очень интересных частных домов совершенно миниатюрных размеров. В каждом проекте маленького дома архитектор пытается найти своеобразный противовес миниатюрному жилому пространству. Для этого все элементы постройки включаются в игру, максимально выявляющую преимущества микродома и направленную на создание оригинального и индивидуального жилища. Чрезвычайно интересно направление наделения создаваемых индивидуальных жилых домов уникальной способностью к изменению. Даже для семьи, живущей в доме всю свою жизнь, он должен постоянно оставаться удобным и комфортным. Другими словами, дом должен позволить людям меняться и сам должен меняться вместе с ними. Этому условию, выводящему на новый уровень качество жизни в переуплотненном мегаполисе, оказывается, не так сложно соответствовать. При проектировании «Дома в форме клина» (арх. М. Эндо, Токио – См. вкл.: илл.11, 12) было создано два типа пространства: то, которое будет со временем видоизменяться или выполнять другие функции, и постоянное, которое должно выполнять свое предназначение в течение всего срока жизни дома.

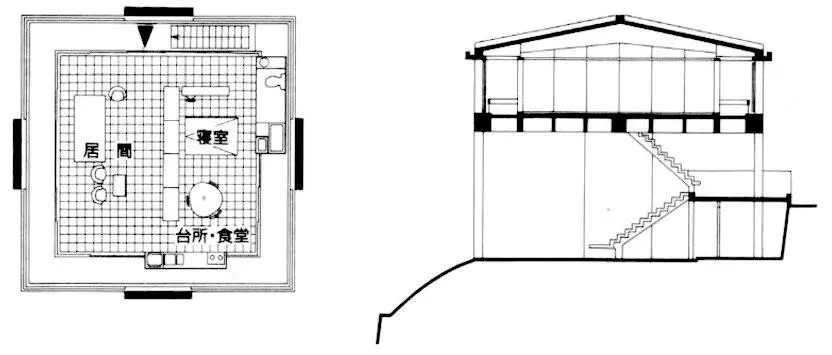
К Кикутакэ Дом одной комнаты 1958 г К Кикутакэ Дом одной - фото 51

К. Кикутакэ. «Дом одной комнаты» (1958 г.)

К Кикутакэ Дом одной комнаты План и разрез Столовая кухня ванная - фото 52

К. Кикутакэ. «Дом одной комнаты». План и разрез

Столовая, кухня, ванная комната запланированы как полностью удовлетворяющие образу жизни хозяев и не подлежащие изменению. Однако было предусмотрено несколько видов дополнительного пространства, которое выполняло бы функции резерва в расчете на будущее развитие. На первом этаже располагается большая студия-мастерская, которая может быть переоборудована для использования под другие цели или разделена на несколько помещений. Поднявшись по лестнице на самый верх, можно попасть в запасную комнату наподобие чердака. В настоящее время она служит местом уединения и отдыха, но в планах подразумевается как гостевая или детская.

При жилой площади дома в 34,5 м 2он кажется довольно просторным. Такое впечатление создается из-за частичного отсутствия перекрытий между этажами. Разделение происходит с помощью тонкой структурной сетки. По замыслу архитектора, хозяева дома должны непосредственно чувствовать связь пространства, что поощряет их на социальное взаимодействие и активный стиль жизни.

При создании проекта дома нужно было решить главную проблему – его освещение. Ведь сооружение должно было разместиться на достаточно узком участке шириной примерно 4,5 м, плотно окруженном существующей застройкой. В качестве решения была выбрана клиновидная форма постройки, где наклонная под 45º стена взяла на себя функции окна. В результате внутреннее пространство днем залито солнечным светом, а ночью дом похож на традиционный японский фонарик. Усиливает эффект освещенности белый цвет, в котором решен интерьер. Для того, чтобы оградить жилые комнаты от посторонних глаз, можно опустить экраны, предусмотренные на каждом этаже.

Читать дальше
Тёмная тема
Сбросить

Интервал:

Закладка:

Сделать

Похожие книги на «Современная архитектура Японии. Традиции восприятия пространства»

Представляем Вашему вниманию похожие книги на «Современная архитектура Японии. Традиции восприятия пространства» списком для выбора. Мы отобрали схожую по названию и смыслу литературу в надежде предоставить читателям больше вариантов отыскать новые, интересные, ещё непрочитанные произведения.


Отзывы о книге «Современная архитектура Японии. Традиции восприятия пространства»

Обсуждение, отзывы о книге «Современная архитектура Японии. Традиции восприятия пространства» и просто собственные мнения читателей. Оставьте ваши комментарии, напишите, что Вы думаете о произведении, его смысле или главных героях. Укажите что конкретно понравилось, а что нет, и почему Вы так считаете.

x