Нина Коновалова - Современная архитектура Японии. Традиции восприятия пространства

Здесь есть возможность читать онлайн «Нина Коновалова - Современная архитектура Японии. Традиции восприятия пространства» — ознакомительный отрывок электронной книги совершенно бесплатно, а после прочтения отрывка купить полную версию. В некоторых случаях можно слушать аудио, скачать через торрент в формате fb2 и присутствует краткое содержание. Город: Москва, Год выпуска: 2017, ISBN: 2017, Издательство: Литагент Нестор-История, Жанр: Культурология, Технические науки, architecture_book, на русском языке. Описание произведения, (предисловие) а так же отзывы посетителей доступны на портале библиотеки ЛибКат.

Современная архитектура Японии. Традиции восприятия пространства: краткое содержание, описание и аннотация

Предлагаем к чтению аннотацию, описание, краткое содержание или предисловие (зависит от того, что написал сам автор книги «Современная архитектура Японии. Традиции восприятия пространства»). Если вы не нашли необходимую информацию о книге — напишите в комментариях, мы постараемся отыскать её.

Япония отличается особым отношением к традиционным ценностям своей культуры. Понимание механизмов актуализации и развития традиций, которыми пользуется Япония, может открыть новые способы сохранения устойчивости культуры, что становится в настоящее время все более актуальной проблемой для многих стран мира. В качестве центральных категорий, составляющих основу пространственного восприятия архитектуры в Японии, выделяется триада: пустота, промежуток, тень. Эти категории можно считать инвариантами культуры этой страны, т. к. устойчивость их применения прослеживается не только в средние века, но и в Новейшее время. Современная архитектура Японии демонстрирует свою связь с традицией не столько формальными методами, сколько на более глубоком – уровне основных схем восприятия художественного произведения, его смысловых и эстетических составляющих. Крупнейшие современные архитекторы, создавая свои произведения, стремятся сохранять ощущение пространства, исторически воспитанное культурой Японии.
Книга предназначена архитекторам, искусствоведам, а также всем интересующимся культурой Японии.

Современная архитектура Японии. Традиции восприятия пространства — читать онлайн ознакомительный отрывок

Ниже представлен текст книги, разбитый по страницам. Система сохранения места последней прочитанной страницы, позволяет с удобством читать онлайн бесплатно книгу «Современная архитектура Японии. Традиции восприятия пространства», без необходимости каждый раз заново искать на чём Вы остановились. Поставьте закладку, и сможете в любой момент перейти на страницу, на которой закончили чтение.

Тёмная тема
Сбросить

Интервал:

Закладка:

Сделать
Т Андо Церковь Света Фрагмент интерьера ТАндо Вилла Косино 1981 г - фото 27

Т. Андо. Церковь Света. Фрагмент интерьера

ТАндо Вилла Косино 1981 г Два блока помещений виллы поставленные - фото 28

Т.Андо. Вилла Косино (1981 г.)

Два блока помещений виллы, поставленные параллельно друг другу, соединяются подземным переходом и имеют внутренний двор, соответствующий наклонным контурам участка. Устройство внутреннего двора символически передает организацию природного мира. Во внутренний двор выходит большая гостиная с широкой открытой лестницей, которые и рассматриваются архитектором как главные объекты, призванные воспринимать игру светотени.

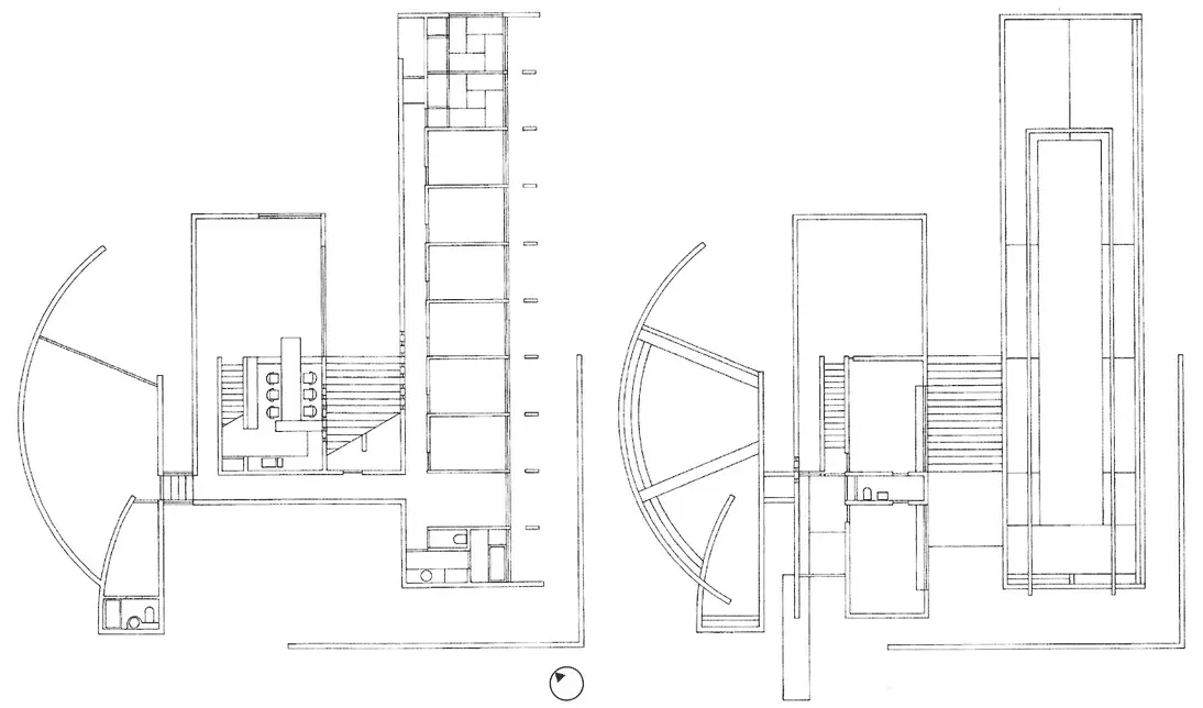
ТАндо Вилла Косино Поэтажные планы ТАндо Вилла Косино Фрагмент - фото 29

Т.Андо. Вилла Косино. Поэтажные планы

ТАндо Вилла Косино Фрагмент интерьера Используя для постройки - фото 30

Т.Андо. Вилла Косино. Фрагмент интерьера

Используя для постройки необработанный бетон, Андо «оживляет» фактуру материала с помощью светового воздействия. Для попадания внутрь солнечного света предусмотрены разной длины проемы, в которых лучи солнца образуют свои причудливые узоры. Так материальный объект – неподвижная бетонная форма – дополняется световыми вариациями и получает способность «изменяться», воздействуя на эмоции и чувства посетителей. Можно сказать, что свет является посредником между пространством и формой, раскрывая их потенциал в динамике, что намного превосходит их статичные возможности.

Т Андо Детский музей 1989 г Архитектура по мнению Тадао Андо не может - фото 31

Т. Андо. Детский музей (1989 г.)

Архитектура, по мнению Тадао Андо, не может быть автономна. Она не существует сама по себе, а всегда формируется путем диалога с природой. В каждом своем произведении архитектор виртуозно создает этот диалог. В то же время он считает, что отсутствие противостояния архитектуры и природы, которое было характерно для традиционной культуры Японии, давно осталось в прошлом. Он убежден, что в современной жизни должно присутствовать и сохраняться их противостояние, создавая определенную напряженность, необходимую для их органичного сосуществования, и, что не менее важно, для адекватного восприятия и оценки архитектуры. Андо не просто демонстрирует гармоничное единение архитектуры и природы, но и показывает возможности их взаимного раскрытия и обогащения. Ярким примером постройки, раскрывающей свой потенциал в диалоге с природой, является Детский музей ( Children's Museum , 1989), расположенный в префектуре Хёго. Перед входом в музей посетителя ожидает обязательная длинная прогулка вдоль бетонной стены для того, чтобы сосредоточить его внимание на окружающем пейзаже. Дорога к музею ведет вверх по крутому ландшафту, где гладкие площади чередуются с маршами ступенек. Эта дорога символически и функционально отсылает нас к выложенной каменными плитами дорожке в традиционном японском саду. Главное предназначение извилистой дорожки заключается в концентрации внимания посетителей на определенных картинах пейзажа. Так и музейное здание получило определенные правила для входа, вторя наследию своей культуры и заимствуя у нее четко отлаженный механизм воздействия архитектуры на сознание и настроение человека.

Андо «оживляет» сооружения с помощью раскрытия новых граней «триады» пространственного понимания. Руководствуясь традициями своей страны, архитектор не просто демонстрирует гармоничное сосуществование архитектуры и природы, их непротиворечивость, но и предъявляет их взаимное раскрытие и обогащение. Смысловая «триада» воспринимается архитектором с позиции главенства тени, которая вбирает в себя остальные пространственные категории. Именно через свет открывается возможность показать пустоту, незаполненность пространства, через игру светотени подчеркнуть промежуточную зону. В результате постройки Андо наиболее любопытно рассматривать именно через призму «свет – тень».

Т Андо Детский музей План Т Андо Детский музей Фрагмент Киёнори - фото 32

Т. Андо. Детский музей. План

Т Андо Детский музей Фрагмент Киёнори Кикутакэ пространственные связи К - фото 33

Т. Андо. Детский музей. Фрагмент

Читать дальше
Тёмная тема
Сбросить

Интервал:

Закладка:

Сделать

Похожие книги на «Современная архитектура Японии. Традиции восприятия пространства»

Представляем Вашему вниманию похожие книги на «Современная архитектура Японии. Традиции восприятия пространства» списком для выбора. Мы отобрали схожую по названию и смыслу литературу в надежде предоставить читателям больше вариантов отыскать новые, интересные, ещё непрочитанные произведения.


Отзывы о книге «Современная архитектура Японии. Традиции восприятия пространства»

Обсуждение, отзывы о книге «Современная архитектура Японии. Традиции восприятия пространства» и просто собственные мнения читателей. Оставьте ваши комментарии, напишите, что Вы думаете о произведении, его смысле или главных героях. Укажите что конкретно понравилось, а что нет, и почему Вы так считаете.

x