Нина Коновалова - Современная архитектура Японии. Традиции восприятия пространства

Здесь есть возможность читать онлайн «Нина Коновалова - Современная архитектура Японии. Традиции восприятия пространства» — ознакомительный отрывок электронной книги совершенно бесплатно, а после прочтения отрывка купить полную версию. В некоторых случаях можно слушать аудио, скачать через торрент в формате fb2 и присутствует краткое содержание. Город: Москва, Год выпуска: 2017, ISBN: 2017, Издательство: Литагент Нестор-История, Жанр: Культурология, Технические науки, architecture_book, на русском языке. Описание произведения, (предисловие) а так же отзывы посетителей доступны на портале библиотеки ЛибКат.

Современная архитектура Японии. Традиции восприятия пространства: краткое содержание, описание и аннотация

Предлагаем к чтению аннотацию, описание, краткое содержание или предисловие (зависит от того, что написал сам автор книги «Современная архитектура Японии. Традиции восприятия пространства»). Если вы не нашли необходимую информацию о книге — напишите в комментариях, мы постараемся отыскать её.

Япония отличается особым отношением к традиционным ценностям своей культуры. Понимание механизмов актуализации и развития традиций, которыми пользуется Япония, может открыть новые способы сохранения устойчивости культуры, что становится в настоящее время все более актуальной проблемой для многих стран мира. В качестве центральных категорий, составляющих основу пространственного восприятия архитектуры в Японии, выделяется триада: пустота, промежуток, тень. Эти категории можно считать инвариантами культуры этой страны, т. к. устойчивость их применения прослеживается не только в средние века, но и в Новейшее время. Современная архитектура Японии демонстрирует свою связь с традицией не столько формальными методами, сколько на более глубоком – уровне основных схем восприятия художественного произведения, его смысловых и эстетических составляющих. Крупнейшие современные архитекторы, создавая свои произведения, стремятся сохранять ощущение пространства, исторически воспитанное культурой Японии.
Книга предназначена архитекторам, искусствоведам, а также всем интересующимся культурой Японии.

Современная архитектура Японии. Традиции восприятия пространства — читать онлайн ознакомительный отрывок

Ниже представлен текст книги, разбитый по страницам. Система сохранения места последней прочитанной страницы, позволяет с удобством читать онлайн бесплатно книгу «Современная архитектура Японии. Традиции восприятия пространства», без необходимости каждый раз заново искать на чём Вы остановились. Поставьте закладку, и сможете в любой момент перейти на страницу, на которой закончили чтение.

Тёмная тема
Сбросить

Интервал:

Закладка:

Сделать

Интересно обращение великого архитектора к национальным традициям своей культуры. Например, элементы завершения большой спортивной арены комплекса Ёёги перекликаются с архитектурой главной святыни Японии – синтоистского святилища Исэ. «Весь дальнейший путь японской архитектуры берет свое начало в Исэ», – писал Тангэ [12] Тангэ К . Функция, структура, символ (1966 г.) // Танге К. М., 1978. . Его обращение к традиции всегда тактично и неназойливо, но никогда «в лоб». Тангэ не только понял, но и прочувствовал все основополагающие вехи, составляющие японскую архитектурную традицию. Поэтому в организации пространства сооружений великого архитектора в едва уловимых полутонах и намеках можно угадать те константы, которые составляют сущность японской культуры.

Центр прессы и радиокоммуникаций префектуры Яманаси (Yamanashi Broadcasting and Press Center, 1967 г.) должен был вместить в себя фирмы, работающие в области информации: типографию, газеты, радио- и телестудии. Архитектор сгруппировал помещения по функциям. Так были созданы группы помещений администрации, студий, рабочие цеха, которые фирмы распределили между собой. Типография с ее тяжелым оборудованием разместилась на первом этаже. Студиям были отведены верхние этажи без окон, т. к. им наиболее важна звукоизоляция и не требуется дневной свет. Административные помещения всех фирм заняли средние этажи, которые хорошо освещены через застекленные стены и опоясаны сплошными балконами.

Во внешнем облике сооружения четко прослеживается вертикальное и горизонтальное членение. Коммуникационные помещения (лестничные клетки, грузовые и пассажирские лифты, санузлы и пр.) размещены в 16 вертикальных цилиндрических башнях-колоннах. Горизонтальные помещения имеют свободную планировку, которая диктуется различными функциями. Каждая функция выражается требующимся ей открытым или закрытым объемом. А также в здании зарезервировано свободное пространство для дальнейшего расширения его функционала. Таким образом, сооружение является примером трехмерной пространственной системы в одной постройке. Это позволяет зданию в целом символически передавать образ современного города, предназначенного для коммуникации.

КТангэ Центр прессы и радиокоммуникаций префектуры Яманаси 1967 г - фото 15

К.Тангэ. Центр прессы и радиокоммуникаций префектуры Яманаси (1967 г.)

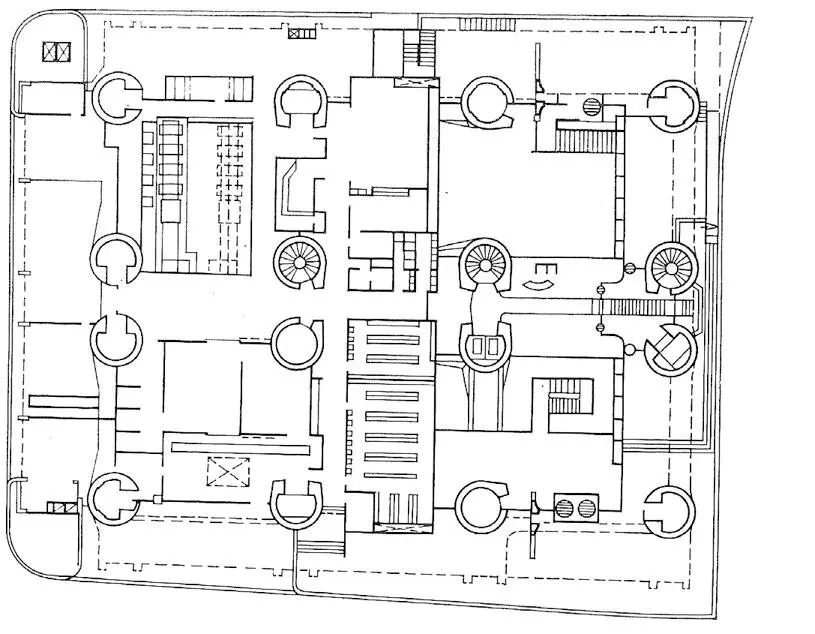
КТангэ Центр прессы и радиокоммуникаций префектуры Яманаси План Знаменитые - фото 16

К.Тангэ. Центр прессы и радиокоммуникаций префектуры Яманаси. План

Знаменитые произведения Тангэ помогают понять отношение мастера к «триаде» основополагающих пространственных категорий Японии. Работая со сформировавшимися в культуре категориями, архитектор ставит их «на службу» раскрытия функционального потенциала сооружения. Ведущую роль в «триаде» Тангэ отводит «пустоте», несущей основную художественную, смысловую и функциональную нагрузку. «Промежуток» и «тень» лишь подчеркивают доминанту, усиливая ее воздействие. В целом «триада» в работах Тангэ, раскрывая функциональное назначение здания, наделяет его таким ярким образным воздействием, что превращает сооружение в безусловный знак-символ. Так Тангэ старался сформировать новый тип мышления, восприимчивый к эстетическим ценностям, способный на раскрытие смыслового ряда, заложенного в произведении искусства, прежде всего в архитектуре. И одновременно (одно без другого невозможно) архитектор смог наделить архитектурные сооружения и город в целом характеристиками «эстетичный», «функциональный», используя для этого «триаду» как составную часть глубоких механизмов миропонимания японцев.

Кисё Курокава и «серое» пространство

Раскрывая представления о красоте в культуре Японии, К. Курокава создает собственную философию архитектуры, предъявляя свое произведение как емкий художественный образ. Он умышленно апеллирует к серому цвету и «серым зонам» в здании, делая акцент именно на них. Под «серой зоной» Курокава понимает промежуточное пространство, которое нельзя отнести ни ко внешнему, ни ко внутреннему, оно является срединным элементом, вбирающим в себя качества двух первых.

Своим творчеством архитектор также демонстрирует возможности серого цвета, преимущественно отказываясь от ярких красок в пользу более сдержанных серых оттенков. Серый предъявляется в работах мастера как цвет, создающий качественные характеристики архитектурным произведениям, наполняющий их содержательными образами, встраивающий произведения в ряд традиционно осмысляемых. Выбранный цвет подчеркивает естественную фактуру используемых материалов – бетона, металлических конструкций. Прежде всего именно цветовое решение раскрывает понимание архитектором традиций своей культуры и способствует более полному восприятию его произведений. Этот цвет был настолько любим великим чайным мастером 16 в. Сэн-но Рикю, что существует даже термин «мышино-серый во вкусе Рикю» ( Рикю-нэдзуми ).

Читать дальше
Тёмная тема
Сбросить

Интервал:

Закладка:

Сделать

Похожие книги на «Современная архитектура Японии. Традиции восприятия пространства»

Представляем Вашему вниманию похожие книги на «Современная архитектура Японии. Традиции восприятия пространства» списком для выбора. Мы отобрали схожую по названию и смыслу литературу в надежде предоставить читателям больше вариантов отыскать новые, интересные, ещё непрочитанные произведения.


Отзывы о книге «Современная архитектура Японии. Традиции восприятия пространства»

Обсуждение, отзывы о книге «Современная архитектура Японии. Традиции восприятия пространства» и просто собственные мнения читателей. Оставьте ваши комментарии, напишите, что Вы думаете о произведении, его смысле или главных героях. Укажите что конкретно понравилось, а что нет, и почему Вы так считаете.

x