Федор Дубневич - Ремонт и отделка загородного дома

Здесь есть возможность читать онлайн «Федор Дубневич - Ремонт и отделка загородного дома» — ознакомительный отрывок электронной книги совершенно бесплатно, а после прочтения отрывка купить полную версию. В некоторых случаях можно слушать аудио, скачать через торрент в формате fb2 и присутствует краткое содержание. Город: СПб, Год выпуска: 2011, ISBN: 2011, Издательство: БХВ-Петербург, Жанр: Сад и огород, на русском языке. Описание произведения, (предисловие) а так же отзывы посетителей доступны на портале библиотеки ЛибКат.

Ремонт и отделка загородного дома: краткое содержание, описание и аннотация

Предлагаем к чтению аннотацию, описание, краткое содержание или предисловие (зависит от того, что написал сам автор книги «Ремонт и отделка загородного дома»). Если вы не нашли необходимую информацию о книге — напишите в комментариях, мы постараемся отыскать её.

В популярной и доступной форме рассмотрены основные вопросы отделки и ремонта загородных домов и дачных домиков с применением современных и традиционных технологий и материалов. Предложены способы самостоятельного выявления неисправностей и дефектов строительных конструкций. Подробно описаны практические шаги по ремонту основных элементов дома: фундамента, стен, цокольных, межэтажных и чердачных перекрытий, крыши и кровли, деревянных и железобетонных лестниц, межкомнатных перегородок. Рассмотрены наружная и внутренняя отделка, ремонт и замена полов, окон и дверей, возведение и ремонт печей, каминов, дымоходов и дымовых труб и др.
Для широкого круга читателей.

Ремонт и отделка загородного дома — читать онлайн ознакомительный отрывок

Ниже представлен текст книги, разбитый по страницам. Система сохранения места последней прочитанной страницы, позволяет с удобством читать онлайн бесплатно книгу «Ремонт и отделка загородного дома», без необходимости каждый раз заново искать на чём Вы остановились. Поставьте закладку, и сможете в любой момент перейти на страницу, на которой закончили чтение.

Тёмная тема
Сбросить

Интервал:

Закладка:

Сделать

Изготовление монолитных железобетонных лестниц

Первым этапом изготовления монолитной конструкции лестницы является установка опалубки. Опалубка — это изначальная форма лестницы. Она состоит из обрезных, строганых, плотно прилегающих друг к другу досок и изнутри обшивается 10-миллиметровой фанерой. Следующим этапом изготовления является установка армокаркаса. В целом армокаркас состоит из 12-миллиметровой арматуры, устанавливается вдоль и поперек всех несущих граней опалубки будущей конструкции монолитного марша с шагом стержней 100–150 мм, соединенных вязкой из мягкой тонкой проволоки. Армокаркас распределяет постоянные (собственный вес марша) и временные нагрузки на несущие элементы здания. Завершает строительство марша укладка бетона В22.5 (М300) на гранитном щебне. Укладку выполняют с вибротромбованием. Застывший бетон обрабатывается шлифовальными дисками. Опалубку снимают обычно на 3–4 сутки после бетонирования: снимают аккуратно ломиками, чтобы не повредить поверхностей монолитного изделия.

Лестница по металлическим косоурам

Несущая основа этой лестницы выполняется из прокатных стальных швеллеров или двутавров высотой 14–18 см, устанавливаемых попарно в каждом марше и площадке. Пристенная площадочная балка может отсутствовать, тогда плиты площадок в этом месте опираются непосредственно на кирпичную стену. Сопряжение косоуров с подкосоурными (площадочными) балками выполняют с помощью болтов или сварки. При устройстве двухмаршевой лестницы с маршами разной длины применяют гнутые косоуры. По косоурам укладывают сборные железобетонные ступени, а по плоским железобетонным плитам площадок устраивают полы. В местах примыкания лестничного марша к площадке укладывают специальные ступени: нижнюю и верхнюю фризовые, образующие переход к горизонтальной плоскости площадок (рис. 8.1).

Деревянная лестница В загородных домах для выхода в мансарду обычно устраивают - фото 117

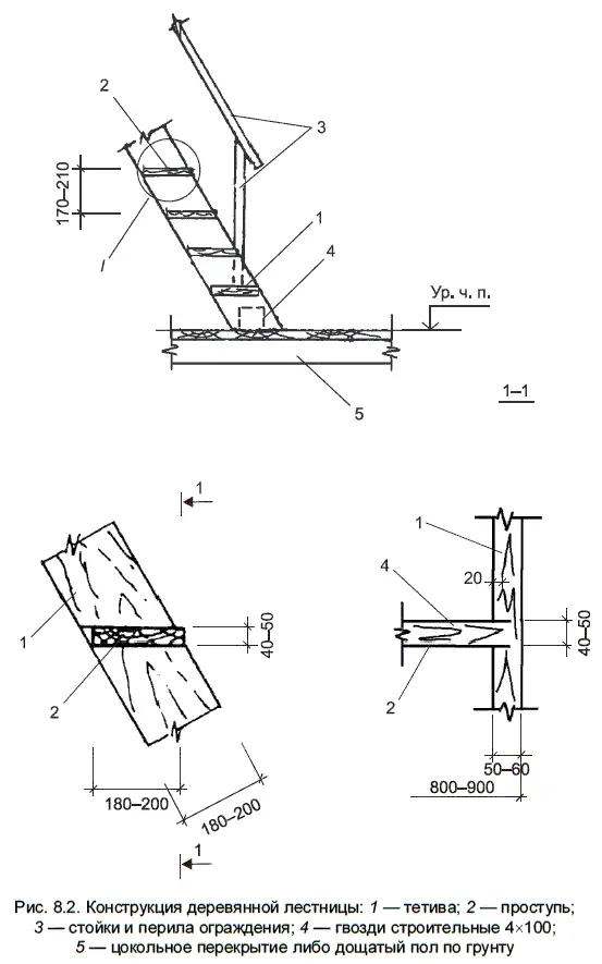
Деревянная лестница

В загородных домах для выхода в мансарду обычно устраивают деревянные лестницы. Они просты в исполнении и хорошо вписываются в интерьер. Их также выполняют в виде наклонного марша, который состоит из несущих (тетива, ступени) и вспомогательных (перила, стойки) элементов. Длина ступени (ширина марша) должна составлять 800–900 мм, ширина 230–260 мм, высота подступенка — 170–210 мм. Тетивы лестниц выполняют из досок шириной 180200 мм и толщиной 50–60 мм, проступи — из шпунтованных досок толщиной 40–50 мм.

Проступи врезают в тетиву на глубину 20 мм и закрепляют в пазах клеем и гвоздями 4×100 мм. Угол наклона лестниц принимают 40–45°, реже 60°.

Ограждение лестницы, как правило, устанавливают с одной стороны. Оно зависит от формы лестницы и решается разнообразными способами. Конструкция деревянной лестницы показана на рис. 8.2.

Ремонт бетонных и каменных лестниц Лестницы из натурального и искусственного - фото 118

Ремонт бетонных и каменных лестниц

Лестницы из натурального и искусственного материала (кирпича, бетона) более долговечны, чем деревянные, но и они со временем могут потребовать ремонта. Характерные разрушения, которые возникают в каменных и бетонных лестницах, связаны прежде всего с трещинами в лестничных маршах и истиранием проступей.

Стершиеся каменные и бетонные ступени ремонтируют с помощью эпоксидной смолы, а в качестве наполнителя используют материал, из которого сделана ступень либо другой материал того же цвета, что и ступень. Рассмотрим последовательность операций.

Сначала поверхность ступени очищают от грязи и покрывают насечкой для повышения адгезии. Затем на подготовленное таким образом основание наносится эпоксидная смола, которая выравнивается шпателем до нормального уровня проступи и после затвердения шлифуется абразивом (наждачной бумагой, абразивным камнем и т. п.).

Стершиеся ступени можно выровнять, покрыв их керамогранитом, керамическими плитками или другим подходящим материалом. Это не очень трудоемкий процесс, результатом которого будет новый свежий вид лестницы.

Трещины в лестничных маршах могут возникнуть от перегрузки, осадки стены лестничной клетки, падения на лестницу тяжелой мебели при переноске и т. д. Если трещина возникла в каменной или железобетонной ступени лестничного марша, весь марш подпирают наклонным прогоном на заклиненных столбах. Затем часть лестницы над трещиной укрепляют от сползания вниз распоркой, упирающейся в противоположную стену или в подступенок первой ступени. Над треснувшей ступенью прижимают поперечную балку, концы которой опирают в гнезда кладки боковых стен лестничной клетки. Треснувшую ступеньку снимают, полностью разбирая место ее крепления в кладке или освобождая его лишь настолько, чтобы ступень можно было повернуть и вынуть. На ее место ставят новую ступень, которую прочно заклинивают в стене и заделывают цементным раствором.

Читать дальше
Тёмная тема
Сбросить

Интервал:

Закладка:

Сделать

Похожие книги на «Ремонт и отделка загородного дома»

Представляем Вашему вниманию похожие книги на «Ремонт и отделка загородного дома» списком для выбора. Мы отобрали схожую по названию и смыслу литературу в надежде предоставить читателям больше вариантов отыскать новые, интересные, ещё непрочитанные произведения.


Отзывы о книге «Ремонт и отделка загородного дома»

Обсуждение, отзывы о книге «Ремонт и отделка загородного дома» и просто собственные мнения читателей. Оставьте ваши комментарии, напишите, что Вы думаете о произведении, его смысле или главных героях. Укажите что конкретно понравилось, а что нет, и почему Вы так считаете.

x